г. Домодедово, ул Корнеева, д 1

Дом 130 м2 на 6 сотках ИЖС!!! ID: J10024

Минаево, Московская область, городской округ Домодедово, деревня Минаево, коттеджный посёлок Южный парк
Площадь 130 м²
Этажи 1
Сдача 2025
Материал каркасный
10 500 000
80 769 /м²
Ипотека от 63 941 /месяц
Рассчитать ипотеку
QR
Ссылка на объект

Описание

Предлагаем дом для круглогодичного проживания площадью 130 м² на 6 сотках!
В КП Южный парк, Домодедовского района.
ПОДХОДИТ ПОД ЛЬГОТНУЮ ИПОТЕКУ ОТ 6% !!!
Отделка: ПОД КЛЮЧ!!!
Он построен по новейшей каркасной технологии. Отличное свайное поле из ЖБ свай (48 шт.)
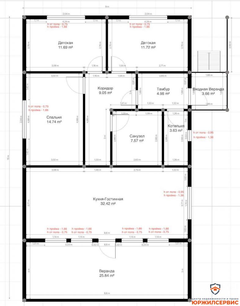
Планировка:
• Прихожая
• Бойлерная (дополнительный санузел)
• Просторная кухня-гостиная
• 3 спальни
• Большой санузел
• Терраса
Коммуникации:
• Электричество 15 кВт
• Септик
• Скважина
Участок сухой, правильной формы с парковочным местом.
Этот дом совмещает комфорт, стиль и функциональность. Современный дизайн и большие окна наполняют пространство светом и уютом!
Удобная планировка максимизирует использование каждого квадратного метра, что делает дом идеальным для семейных вечеров и уединения с книгой.
Коттеджный поселок "Южный парк" комфорт-класса! Он окружён лесом, в 5 минутах ходьбы река Злодейка!
Если Вы устали от суеты города, то это предложение для Вас !!!
Дом расположен в 35 км от МКАД, в 30 минутах на авто до Москвы, 5 км до поселка Растуново, где вся городская инфраструктура: школа, детские сады спорткомплекс и т.д..
Звоните, отвечу на все вопросы. Оперативный показ и помощь в одобрении ипотеки.
Цена: 10 500 000.
Подробнее

Характеристики

  • Тип недвижимости Дома, дачи, коттеджи
  • Район Домодедовский район
  • Населенный пункт Минаево
  • Адрес Московская область, городской округ Домодедово, деревня Минаево, коттеджный посёлок Южный парк
  • Тип объекта дом
  • Тип дома каркасный
  • Общая площадь 130 м²
  • Площадь участка 6 сот.
  • Этажей 1
  • Год постройки 2025
  • Название коттеджного посёлка Южный Парк
  • Материал стен Деревянный
  • Отопление Электро
  • Категория земли ИЖС
  • Тип комнат Изолированные
Задать вопрос

Расчет ипотеки

10 500 000



Сбербанк Процентная ставка от 6%

Минимальный взнос: 15% ( 0 )
Ежемесячный платеж: 0
Сумма кредита: 0
График платежей Открыть
Отправить заявку на ипотеку
ВТБ Процентная ставка от 6%

Минимальный взнос: 10% ( 0 )
Ежемесячный платеж: 0
Сумма кредита: 0
График платежей Открыть
Отправить заявку на ипотеку
РоссельхозБанк Процентная ставка от 6%

Минимальный взнос: 20% ( 0 )
Ежемесячный платеж: 0
Сумма кредита: 0
График платежей Открыть
Отправить заявку на ипотеку
Открытие Процентная ставка от 8.7%

Минимальный взнос: 15% ( 0 )
Ежемесячный платеж: 0
Сумма кредита: 0
График платежей Открыть
Отправить заявку на ипотеку
Уралсиб Процентная ставка от 9.2%

Минимальный взнос: 20% ( 0 )
Ежемесячный платеж: 0
Сумма кредита: 0
График платежей Открыть
Отправить заявку на ипотеку
Промсвязьбанк Процентная ставка от 9%

Минимальный взнос: 10% ( 0 )
Ежемесячный платеж: 0
Сумма кредита: 0
График платежей Открыть
Отправить заявку на ипотеку
Совкомбанк Процентная ставка от 9.2%

Минимальный взнос: 20% ( 0 )
Ежемесячный платеж: 0
Сумма кредита: 0
График платежей Открыть
Отправить заявку на ипотеку

Вас также может заинтересовать:
8
Помощь в одобрении ипотеки
Купить в ипотеку по ставке 6%
Участок ИЖС с домом в Южном Парке
Минаево, Московская область, городской округ Домодедово, деревня Минаево, коттеджный посёлок Южный парк

9 500 000
  • Тип дома:каркасный
  • Этажей:1
  • Год постройки:2024
  • Название коттеджного посёлка:Южный Парк

Мы используем файлы cookie, чтобы обеспечить вам наилучший доступ к нашему веб-сайту

Скопировано